Luz verde ambiental a la fábrica de superconductores de Phi4Tech en Badajoz
El proyecto obtiene la autorización ambiental integrada, y queda pendiente de un acuerdo societario sobre la inversión
La fábrica de supercondensadores que la empresa Phi4Tech planea construir en Badajoz ya tiene la autorización ambiental integrada para empezar a funcionar. Así lo publica ... este miércoles el Diario Oficial de Extremadura. Con carácter general, este es el último trámite de estas características que un proyecto industrial tiene que pasar, y se obtiene después de contar con la declaración de impacto ambiental.
Según la resolución de la Dirección General de Sostenibilidad, han preguntado al Ayuntamiento de Badajoz y a la Dirección General de Emergencias y Protección Civil si el proyecto cumplía con el planteamiento asignado a la parcela y si existían vulnerabilidades frente a posibles accidentes. Y en ambos casos la respuesta ha sido favorable a la viabilidad del proyecto.
Según publicó HOY en octubre del año pasado, los promotores –entre los que se encuentra el empresario pacense Alejandro Ayala– estaban pendientes de cerrar un acuerdo societario para desbloquear la inversión.
Entonces, se supo que el proyecto había conseguido 6,4 millones de euros del Gobierno procedentes de la línea de subvenciones de Incentivos Regionales. El total de la inversión asciende a 22,2 millones de euros y supondrá la generación de 48 puestos de trabajo. A la fábrica también han llegado otros 4,7 millones procedentes de los fondos del Perte.
Como viene contando este diario, la empresa tiene una parcela de 177.000 metros cuadrados apalabrada en la plataforma logística de Badajoz. Se encuentra junto al centro logístico que construyó Amazon, aunque todavía no la ha comprado a la empresa regional que gestiona el suelo industrial de la región, Avante. Según ha trascendido, el precio del suelo es de 70 euros por metro cuadrado, por lo que el montante de esta operación es de 12,3 millones de euros. Phi4Tech siempre ha mantenido que no cerraría la adquisición hasta tener todos los permisos.
El proyecto fue anunciado hace cuatro años. En la primavera de 2023 se realizaron movimientos de tierra en las parcelas donde estaba previsto que tuvieran lugar las obras. Sin embargo, no se avanzó luego en los trabajos.
Almacenamiento
El proyecto de Phi4tech en la plataforma logística consiste en la producción de celdas de supercondensadores dirigidos a baterías para almacenamiento energético industrial. La idea es que esas celdas, que se ensamblarían fuera de Extremadura para formar baterías, se fabriquen con los cátodos que la misma empresa pretende elaborar en Cañaveral con el litio extraído de la mina ubicada en la misma localidad cacereña.
Las previsiones de la compañía siempre han tratado de acompasar todo el proceso de la cadena de valor del litio: su extracción, primera transformación en hidróxido de litio, fabricación de cátodos y producción de celdas de baterías.
En octubre, la compañía insistía en que el proyecto tardaría poco tiempo en ponerse en marcha una vez que presentara públicamente el acuerdo societario que tiene la inversión en un compás de espera. Aseguraba que los resultados de la línea piloto que han probado en la fábrica que tienen en Noblejas (Toledo) son óptimos. Este paso era el más difícil.
La empresa desarrollará el proyecto en tres fases, pero ahora solo desarrollará la primera. Cuando el proyecto esté completo, la inversión ascendería a 500 millones de euros.
Para conseguir la autorización que publica el DOE este miércoles, Phi4tech presentó la documentación hace casi año y medio, en octubre de 2023. Según los planes que se manejaban entonces el siguiente paso sería presentar el proyecto definitivo, y una vez obtenidos los permisos arrancar las obras. En un principio se buscaba que la fábrica estuviera acabada a comienzos de este 2025, pero ahora ya no hay plazos, al menos oficialmente.
La capacidad productiva será de 336 unidades a la hora; es decir, 700.000 al año. Será una planta de automatización intermedia que creará, según avanzaron sus responsables, unos 50 puestos de trabajo en su primera fase. A esto se sumarán otros 60 empleos en un centro de investigación que irá ligado al proyecto. Esperan, además, que el número de investigadores vaya creciendo hasta duplicarse. En total el proyecto podría crear 200 empleos directos cuando esté en pleno funcionamiento.
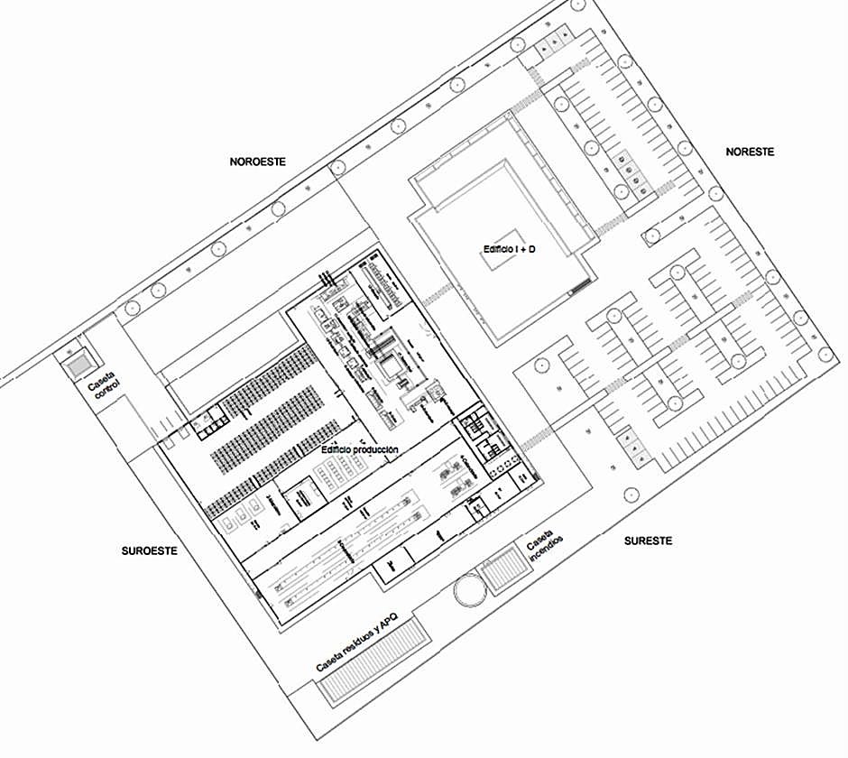
La sede pacense de esta empresa estará dividida en dos edificios. En el primero habrá un edificio de I+D (investigación y desarrollo). Habrá dependencias para el personal, laboratorio y zonas administrativas. Contará con 2.096 metros cuadrados (1.622 en la planta baja y 474 en la segunda). El segundo edificio, el de producción, tendrá 5.910 metros cuadrados, la mayoría en su planta baja aunque habrá una entreplanta con 377 metros cuadrados.
¿Tienes una suscripción? Inicia sesión